Опоры ЛЭП

Сортировка

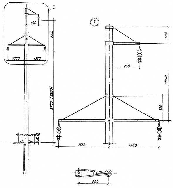
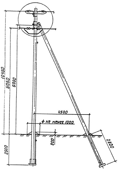
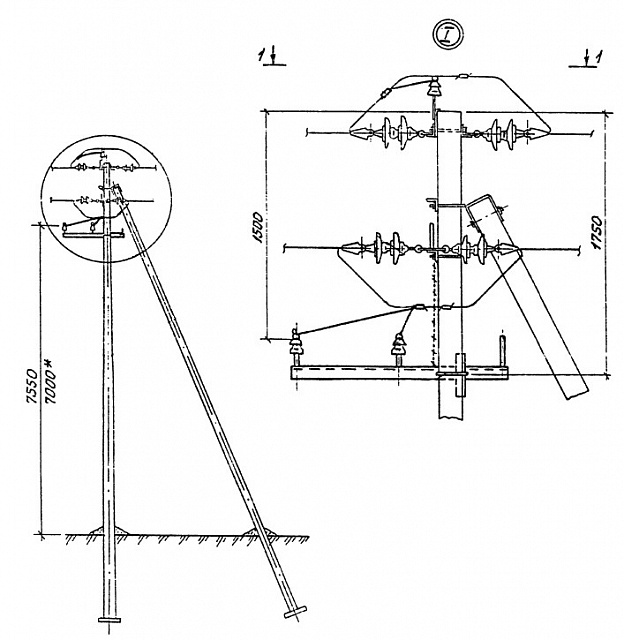
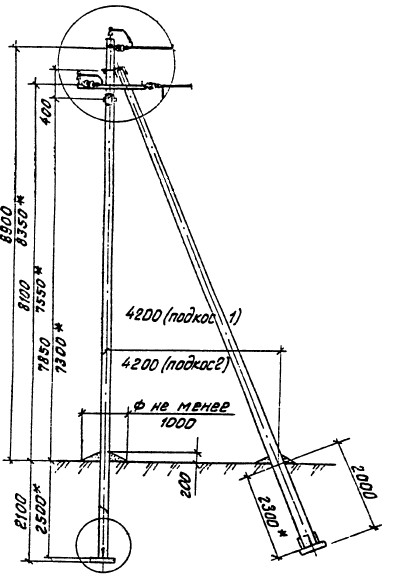
В этом разделе представлены опоры ЛЭП, изготавливаемые компанией ЮШЕ-Электро.
Менеджер
Елизавета
Секретарь-референт
Консультация специалиста
Мы обязательно свяжемся с вами!
Менеджер
Елизавета
Секретарь-референт
Оставить заявку
Мы обязательно свяжемся с вами!
Менеджер
Елизавета
Секретарь-референт
Заказать расчет
Мы обязательно свяжемся с вами!